Landidylle - Wohnen im Grünen: schöne 4-Zimmer-Wohnung über 2 Ebenen!
DATEN IM ÜBERBLICK
Nutzungsart:
Wohnen
Vermarktungsart:
Miete/Pacht
Objektart:
Wohnung
Objekttyp:
Maisonette
Objektinformationen
Kaltmiete:
734,78 €
Nebenkosten:
330,59 €
Hauptkriterien
Nutzfläche:
111,33 m²
Energiepass
Energiepass Art:
Verbrauch
gültig bis:
20.09.2027
Energieverbrauch:
91,00 kWh/(m²a)
mit Warmwasser
✓
Primärenergieträger:
Gas
Ausstelldatum:
20.09.2017
Erstellungsdatum:
2014
Ausstattung
Ausstattung
STANDARD
Tageslichtbad
✓
Dusche
✓
Badewanne
✓
Einbauküche
✓
Fliesenboden
✓
Dielenboden
✓
Zentralheizung
✓
Gasbefeuerung
✓
Gartennutzung
✓
Süd-Westbalkon bzw. Terrasse
✓
Kabel / Sat / TV Empfang
✓
Abstellraum
✓
Pultdach
✓
Massivbau
✓
Gäste WC
✓
Fernblick
Zustand
Baujahr:
1994
Erschließung:
Strom
Daten zum Objekt
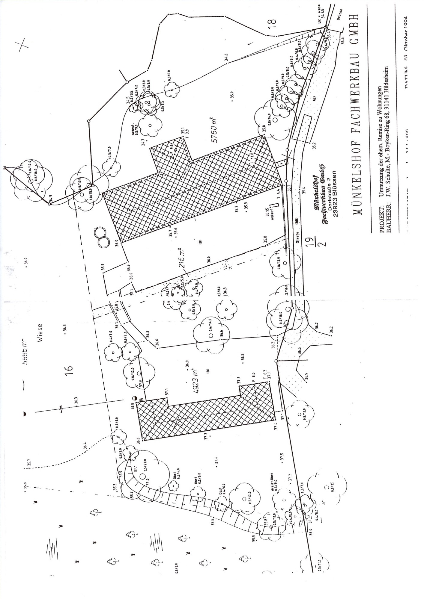
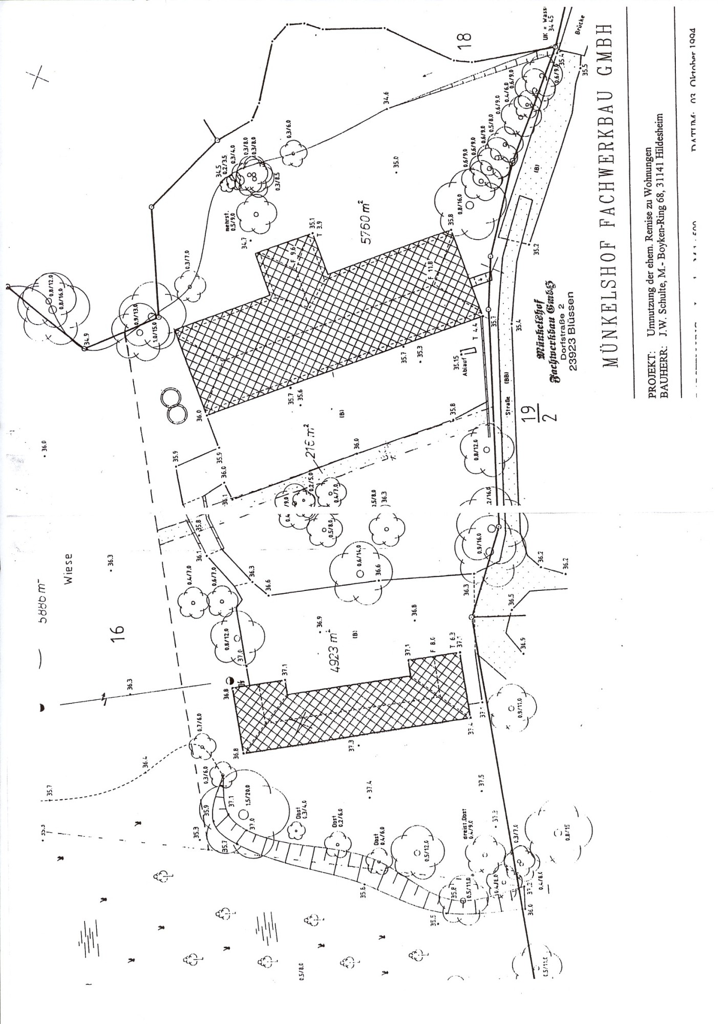
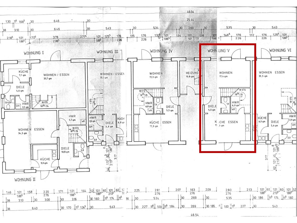
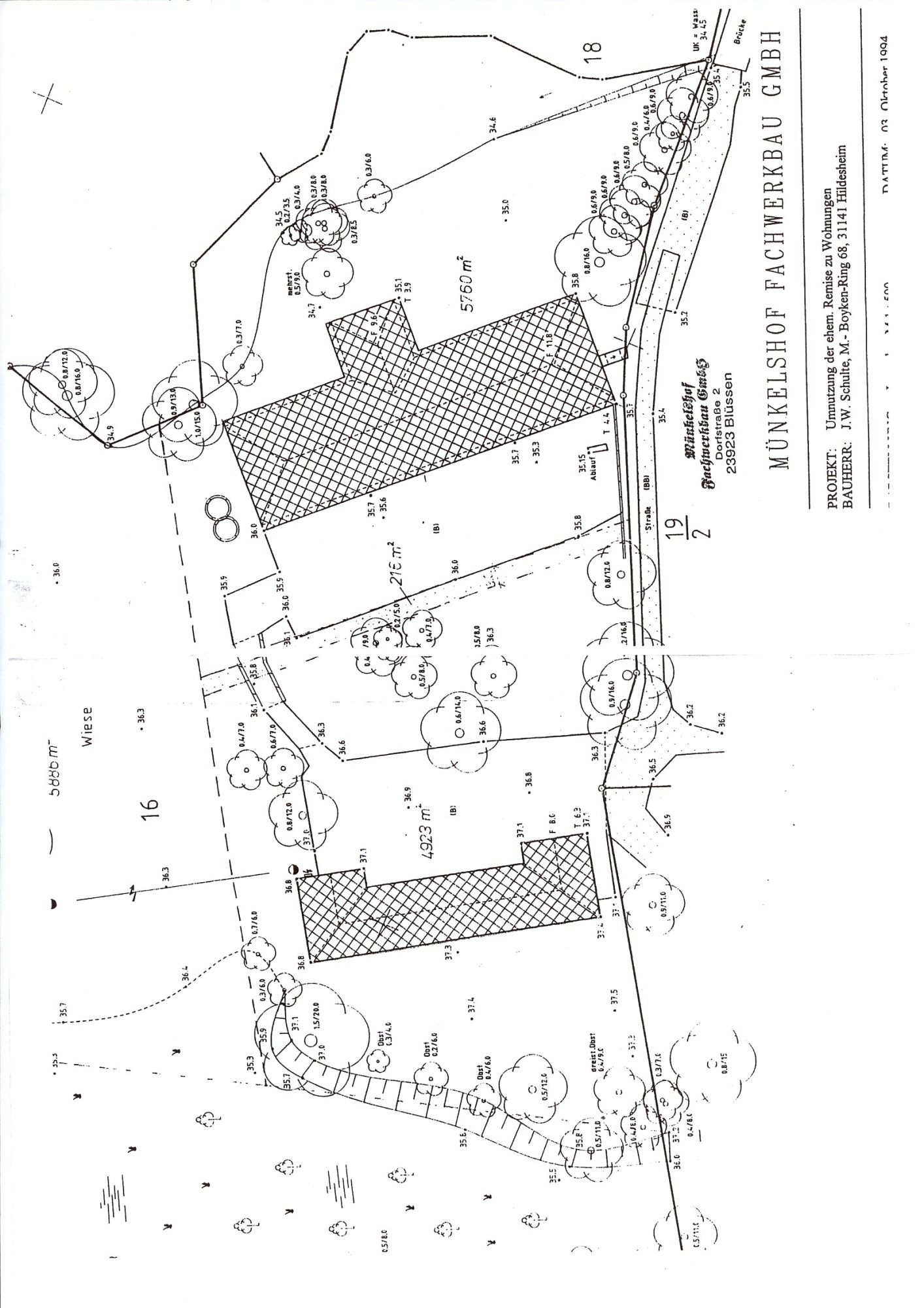
Zu dem 1994 aufwendig sanierten Gebäude mit 8 Wohneinheiten gehört ein großzügig angelegtes Grundstück mit Waldanlage. Die schöne 4-Zimmer-Maisonette-Wohnung hat Reihenhaus-Charakter und besticht durch eine schöne Terrasse in Süd-/ Westausrichtung. Die Mieteinheit erstreckt sich über 2 Ebenen.
Im Erdgeschoss befindet sich ein kleiner Flur, ein separates Gäste-WC sowie eine separat angeordnete helle Küche mit Einbauküche. Der neben der Küche liegende Hauswirtschaftsraum ermöglicht Ihnen die Unterbringung von Vorräten, das Unterbringen von Haushaltsgeräten sowie bietet darüber hinaus Platz für den Anschluss einer Waschmaschine. Das Wohnzimmer verfügt über einen Zugang zu einer Terrasse in Südwestausrichtung.
Über eine viertelgewendete Holztreppe gelangt man in das Obergeschoss. Hier befinden sich drei Schlafzimmer in unterschiedlichen Größenordnungen sowie das Tageslichtvollbad.
Der zugehörige PKW-Stellplatz befindet sich in der nahegelegenen Carport-Anlage. Ein hinter dem Pkw-Stellplatz liegender zugehöriger Abstellraum bietet Platz für die Unterbringung von Fahrrädern oder dem Einlagern der Terrassenmöbel.
Die Wohneinheit bietet insbesondere Paaren oder kleineren Familien eine ruhige Wohnatmosphäre mit ländlichem Charakter.
Im Erdgeschoss befindet sich ein kleiner Flur, ein separates Gäste-WC sowie eine separat angeordnete helle Küche mit Einbauküche. Der neben der Küche liegende Hauswirtschaftsraum ermöglicht Ihnen die Unterbringung von Vorräten, das Unterbringen von Haushaltsgeräten sowie bietet darüber hinaus Platz für den Anschluss einer Waschmaschine. Das Wohnzimmer verfügt über einen Zugang zu einer Terrasse in Südwestausrichtung.
Über eine viertelgewendete Holztreppe gelangt man in das Obergeschoss. Hier befinden sich drei Schlafzimmer in unterschiedlichen Größenordnungen sowie das Tageslichtvollbad.
Der zugehörige PKW-Stellplatz befindet sich in der nahegelegenen Carport-Anlage. Ein hinter dem Pkw-Stellplatz liegender zugehöriger Abstellraum bietet Platz für die Unterbringung von Fahrrädern oder dem Einlagern der Terrassenmöbel.
Die Wohneinheit bietet insbesondere Paaren oder kleineren Familien eine ruhige Wohnatmosphäre mit ländlichem Charakter.
Lage
In der kleinen schönen Gemeinde – "Rüting" zwischen der Kreisstadt Grevesmühlen (Nähe Gewerbegebiet "Upahl") und der Landeshauptstadt Schwerin bieten wir Ihnen eine 4-Zimmer-Wohnung über 2 Ebenen an. Das im Jahr 1994 sanierte Objekt befindet sich in einer ruhigen Nebenstraße auf einem wunderschön parkähnlich angelegten Grundstück mit viel Grün und einem davor liegenden Teich. Bis zum Gewerbegebiet bzw. der Autobahnanbindung Upahl sind es ca. 4 km, bis Grevesmühlen sind es ca. 8 km und bis Schwerin ca. 25 km. Einkaufsmöglichkeiten befinden sich in der nahegelegenen Kreisstadt Grevesmühlen. Für die kleinsten Familienmitglieder befindet sich eine mögliche Kinderbetreuung im nahegelegenen Kindergarten oder im ca. 4 km entfernten Gemeindeort Upahl. Schulpflichtige Kinder können die Grund-/ Realschule, das Gymnasium in Grevesmühlen oder die Regionalschule mit Grundschule in Mühlen Eichsen besuchen.
Ausstattung
Erdgeschoss:
- Flur/ Eingangsbereich
- Gäste-WC
- Wohnzimmer mit Zugang zur Terrasse
- Küchen- und Essbereich mit neuer vorhandener Einbauküche
- Hauswirtschaftsraum mit Waschmaschinenanschluss
Obergeschoss:
- 3 Schlafzimmer
- Tageslichtvollbad mit neuer Badausstattung (Badewanne und Dusche)
- Flur/ Eingangsbereich
- Gäste-WC
- Wohnzimmer mit Zugang zur Terrasse
- Küchen- und Essbereich mit neuer vorhandener Einbauküche
- Hauswirtschaftsraum mit Waschmaschinenanschluss
Obergeschoss:
- 3 Schlafzimmer
- Tageslichtvollbad mit neuer Badausstattung (Badewanne und Dusche)
sonstige Angaben
- Einzug/ Übergabe zum 15.11.2025
- insgesamt gehören 8 Wohneinheiten über je 2 Ebenen zum Objekt
- Heizung: Zentralheizung, Flüssiggas
- SAT-Anlage
- ein Glasfaseranschluss ist bereits vorhanden (Kosten für einen Telefon- und Internetanschluss sind selbst zu tragen)
- Fußböden: Fliesen im Erdgeschoss, Holzdielen im Obergeschoss
- groß angelegtes Gemeinschaftsgrundstück
- anliegende Grünfläche obliegt der Nutzung aller Mietparteien
- kostenpflichtiger Pkw-Stellplatz (Carport)
- keine Haustiere
- insgesamt gehören 8 Wohneinheiten über je 2 Ebenen zum Objekt
- Heizung: Zentralheizung, Flüssiggas
- SAT-Anlage
- ein Glasfaseranschluss ist bereits vorhanden (Kosten für einen Telefon- und Internetanschluss sind selbst zu tragen)
- Fußböden: Fliesen im Erdgeschoss, Holzdielen im Obergeschoss
- groß angelegtes Gemeinschaftsgrundstück
- anliegende Grünfläche obliegt der Nutzung aller Mietparteien
- kostenpflichtiger Pkw-Stellplatz (Carport)
- keine Haustiere

