Ihr Rückzugsort am Meer: Ruhige 2-Zimmer-Wohnung nahe Strand & Hafen!
DATEN IM ÜBERBLICK
Etage:
2. OG
Nutzungsart:
Wohnen
Vermarktungsart:
Verkauf
Objektart:
Wohnung
Objekttyp:
Dachgesschoss
Objektinformationen
Kaufpreis:
259.000,00 €
Hausgeld:
217,76 €
Provision:
provisionspflichtig!
Käuferprovision:
2,98% inkl. MwSt
Hauptkriterien
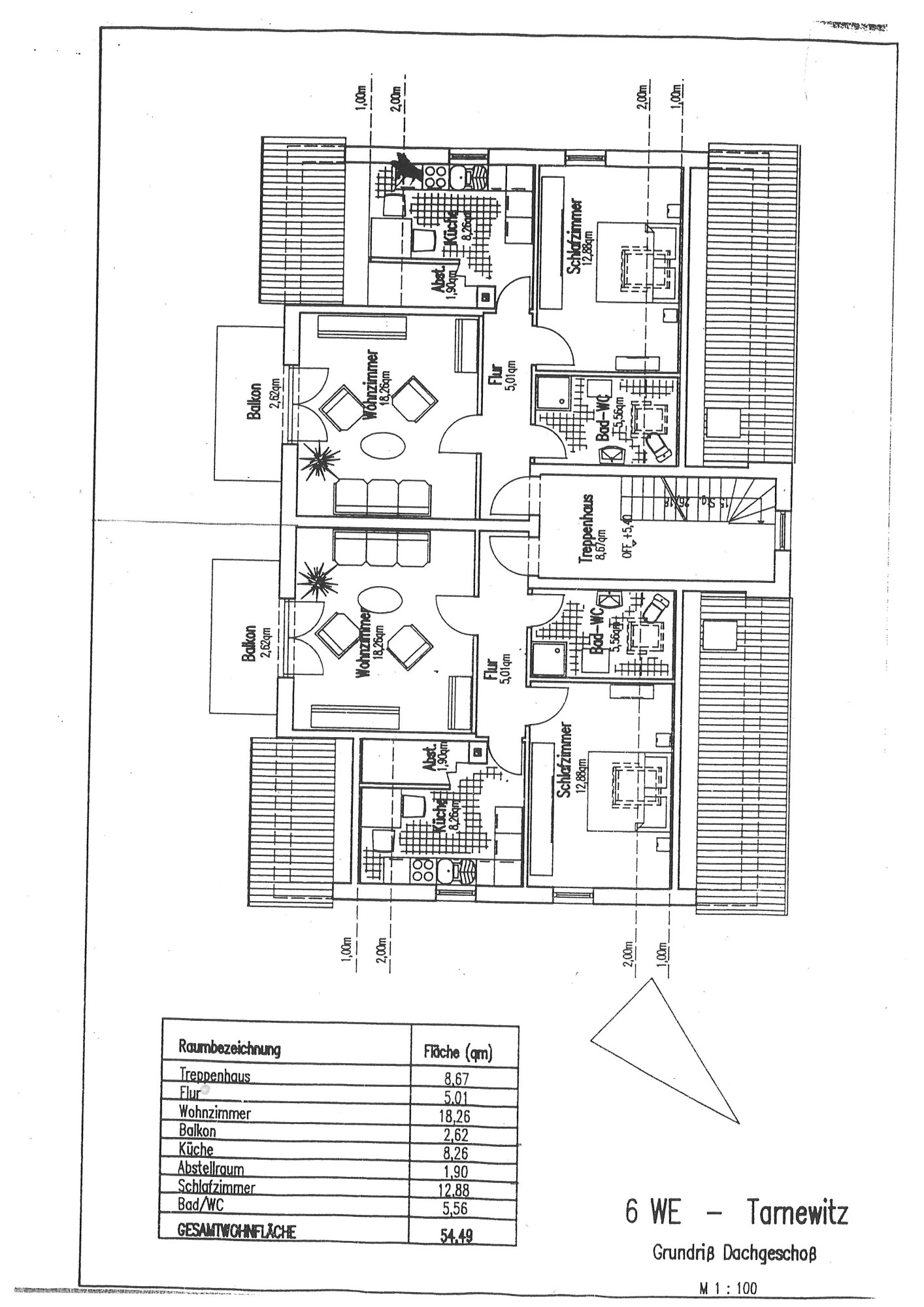
Nutzfläche:
54,49 m²
Energiepass
Energiepass Art:
Verbrauch
gültig bis:
06.05.2031
Energieverbrauch:
83,50 kWh/(m²a)
mit Warmwasser
✓
Primärenergieträger:
Gas
Ausstelldatum:
07.05.2021
Erstellungsdatum:
2014
Ausstattung
Ausstattung
GEHOBEN
Tageslichtbad
✓
Dusche
✓
Einbauküche
✓
Kunststoffboden
✓
Etagenheizung
✓
Zentralheizung
✓
Gasbefeuerung
✓
Gartennutzung
✓
Südbalkon bzw. Terrasse
✓
Kabel / Sat / TV Empfang
✓
Fahrradraum
✓
Satteldach
✓
Massivbau
✓
Zustand
Baujahr:
1995
Erschließung:
Gas
Daten zum Objekt
Das Mehrfamilienhaus mit sechs Wohneinheiten befindet sich im beliebten Boltenhagener Ortsteil Tarnewitz, einer der ruhigsten und zugleich attraktivsten Wohnlagen des Ostseebades. Das gepflegte Wohnhaus überzeugt durch seine harmonische Einbindung in die Umgebung sowie seine vielseitige Nutzbarkeit – ideal sowohl als Erstwohnsitz für Ruhesuchende als auch als Zweitwohnsitz für Wochenend- und Ferienaufenthalte.
Der moderne Yachthafen von Tarnewitz ist nur wenige Gehminuten entfernt und bietet Seglern, Bootsbesitzern und Wassersportfreunden ein hochwertiges maritimes Umfeld. Ebenso schnell erreichen Sie den feinsandigen Ostseestrand, der zu entspannten Spaziergängen, Badeaufenthalten und sportlichen Aktivitäten einlädt. Für kulinarische Genüsse liegt das Hotel Tarnewitzer Hof mit seinem beliebten Restaurant und der gemütlichen Kneipe "Klausner" ebenfalls in unmittelbarer Nähe. Hier erwarten Sie regionale Küche, freundlicher Service und ein Treffpunkt für Einheimische und Gäste gleichermaßen.
Tarnewitz selbst zeichnet sich durch eine angenehm ruhige, grüne und gewachsene Wohnlage aus. Gleichzeitig genießen Sie eine hervorragende Anbindung an den Boltenhagener Ortskern mit seinen Geschäften, Cafés, Veranstaltungen und der lebendigen Strandpromenade.
Das 6-WE-Mehrfamilienhaus bietet damit sowohl Kapitalanlegern (Festvermietung) als auch Selbstnutzern ein attraktives Gesamtpaket: ruhiges Wohnen, über einen schönen Weg durch Wiesen und Felder zum Strand/ Wasser, ein hochwertiges Umfeld und die Möglichkeit, einen der begehrtesten Küstenorte Mecklenburgs dauerhaft oder zeitweise als Zuhause zu nutzen.
Der moderne Yachthafen von Tarnewitz ist nur wenige Gehminuten entfernt und bietet Seglern, Bootsbesitzern und Wassersportfreunden ein hochwertiges maritimes Umfeld. Ebenso schnell erreichen Sie den feinsandigen Ostseestrand, der zu entspannten Spaziergängen, Badeaufenthalten und sportlichen Aktivitäten einlädt. Für kulinarische Genüsse liegt das Hotel Tarnewitzer Hof mit seinem beliebten Restaurant und der gemütlichen Kneipe "Klausner" ebenfalls in unmittelbarer Nähe. Hier erwarten Sie regionale Küche, freundlicher Service und ein Treffpunkt für Einheimische und Gäste gleichermaßen.
Tarnewitz selbst zeichnet sich durch eine angenehm ruhige, grüne und gewachsene Wohnlage aus. Gleichzeitig genießen Sie eine hervorragende Anbindung an den Boltenhagener Ortskern mit seinen Geschäften, Cafés, Veranstaltungen und der lebendigen Strandpromenade.
Das 6-WE-Mehrfamilienhaus bietet damit sowohl Kapitalanlegern (Festvermietung) als auch Selbstnutzern ein attraktives Gesamtpaket: ruhiges Wohnen, über einen schönen Weg durch Wiesen und Felder zum Strand/ Wasser, ein hochwertiges Umfeld und die Möglichkeit, einen der begehrtesten Küstenorte Mecklenburgs dauerhaft oder zeitweise als Zuhause zu nutzen.
Lage
Das Ostseebad Boltenhagen ist das zweitälteste Seebad Mecklenburgs und zählt seit jeher zu den attraktivsten Adressen an der Ostseeküste. Über die ausgebauten Alleen sowie die Autobahn A20 bestehen hervorragende Verbindungen in Richtung Wismar, Rostock, Lübeck und Hamburg.
Die besondere Lage in unmittelbarer Strandnähe und das hochwertige Umfeld besitzen an der Ostseeküste Seltenheitswert. Bereits seit 1803 vertraut man hier auf die heilende Kraft des Meeres. Heute präsentiert sich Boltenhagen als traditionsreiches Seeheilbad mit einem liebevoll gestalteten Ortskern, kleinen Cafés, Restaurants und Boutiquen – ein beliebtes Ziel für Urlauber, Ausflügler und Erholungssuchende.
Rund um den Kurpark erstrahlen die erhaltenen und sanierten Gebäude im Stil der alten Bäderarchitektur und verleihen dem Ort seinen historischen Charme. Die weitläufigen, sanft hügeligen Grünflächen und der breite, autofreie Waldstreifen zwischen Ort und Strand laden zu entspannenden Spaziergängen und ausgedehnten Radtouren ein.
Hauptanziehungspunkt bleibt der kilometerlange, feinsandige Strand, der im Westen in eine eindrucksvolle Steilküste übergeht. Entlang des rund 4,5 Kilometer langen Badestrandes verläuft die gepflegte Strandpromenade mit der 290 Meter langen Seebrücke. Ein besonderes Highlight bildet die neue Dünenpromenade: witterungsbeständige Hartholzplanken führen Sie mit freiem Blick über die Ostsee und auf die Steilküste.
Nur wenige Minuten östlich des Ortskerns liegt der Ortsteil Tarnewitz, der Boltenhagen um eine maritime Attraktion bereichert. Der moderne Yachthafen von Tarnewitz bietet Wassersportlern hervorragende Bedingungen, gepflegte Liegeplätze und ein entspanntes, maritimes Ambiente. Von hier aus genießen Sie eine direkte Lage am Wasser, kleine gastronomische Angebote sowie den idealen Ausgangspunkt für Segeltörns entlang der Küste. Tarnewitz verbindet ruhiges Wohnen mit exklusiver Hafenatmosphäre – eine perfekte Ergänzung zum lebendigen Boltenhagen.
An einem der schönsten Küstenabschnitte der Ostsee lässt sich nicht nur traumhaft Urlaub machen – hier kann man dauerhaft gut leben. Das gesunde Meeresklima, die einzigartige Landschaft und ein abwechslungsreiches Kulturangebot machen Boltenhagen und Tarnewitz zu besonders lebens- und liebenswerten Orten.
Die besondere Lage in unmittelbarer Strandnähe und das hochwertige Umfeld besitzen an der Ostseeküste Seltenheitswert. Bereits seit 1803 vertraut man hier auf die heilende Kraft des Meeres. Heute präsentiert sich Boltenhagen als traditionsreiches Seeheilbad mit einem liebevoll gestalteten Ortskern, kleinen Cafés, Restaurants und Boutiquen – ein beliebtes Ziel für Urlauber, Ausflügler und Erholungssuchende.
Rund um den Kurpark erstrahlen die erhaltenen und sanierten Gebäude im Stil der alten Bäderarchitektur und verleihen dem Ort seinen historischen Charme. Die weitläufigen, sanft hügeligen Grünflächen und der breite, autofreie Waldstreifen zwischen Ort und Strand laden zu entspannenden Spaziergängen und ausgedehnten Radtouren ein.
Hauptanziehungspunkt bleibt der kilometerlange, feinsandige Strand, der im Westen in eine eindrucksvolle Steilküste übergeht. Entlang des rund 4,5 Kilometer langen Badestrandes verläuft die gepflegte Strandpromenade mit der 290 Meter langen Seebrücke. Ein besonderes Highlight bildet die neue Dünenpromenade: witterungsbeständige Hartholzplanken führen Sie mit freiem Blick über die Ostsee und auf die Steilküste.
Nur wenige Minuten östlich des Ortskerns liegt der Ortsteil Tarnewitz, der Boltenhagen um eine maritime Attraktion bereichert. Der moderne Yachthafen von Tarnewitz bietet Wassersportlern hervorragende Bedingungen, gepflegte Liegeplätze und ein entspanntes, maritimes Ambiente. Von hier aus genießen Sie eine direkte Lage am Wasser, kleine gastronomische Angebote sowie den idealen Ausgangspunkt für Segeltörns entlang der Küste. Tarnewitz verbindet ruhiges Wohnen mit exklusiver Hafenatmosphäre – eine perfekte Ergänzung zum lebendigen Boltenhagen.
An einem der schönsten Küstenabschnitte der Ostsee lässt sich nicht nur traumhaft Urlaub machen – hier kann man dauerhaft gut leben. Das gesunde Meeresklima, die einzigartige Landschaft und ein abwechslungsreiches Kulturangebot machen Boltenhagen und Tarnewitz zu besonders lebens- und liebenswerten Orten.
Ausstattung
Diese charmante 2-Zimmer-Eigentumswohnung im Dachgeschoss besticht durch eine angenehme Raumaufteilung, lichtdurchflutete Bereiche und einen gemütlichen Wohnkomfort. Bereits der einladende Flur schafft einen freundlichen Empfang und führt in die verschiedenen Wohnbereiche.
Der Mittelpunkt der Wohnung ist das großzügige Wohnzimmer, das durch seine helle Atmosphäre überzeugt und den direkten Zugang zum Balkon in sonniger Südostlage bietet – ideal für entspannte Frühstücksmomente oder den Genuss der ersten Sonnenstunden des Tages.
Die separate Küche ist mit einer modernen Einbauküche ausgestattet und bietet Platz für gemeinsames Kochen in ruhiger, abgetrennter Atmosphäre.
Das Schlafzimmer eignet sich perfekt als Rückzugsort und bietet ausreichend Raum für eine komfortable Möblierung.
Ein besonderes Highlight ist das Tageslichtduschbad mit zeitgemäßer Ausstattung: einer großzügigen, bodengleichen Dusche, WC, einem Waschtisch mit kombiniertem Unterschrank, Handtuchheizkörper sowie dem praktischen Anschluss für eine Waschmaschine.
Ein besonderer Vorteil der Wohnung ist die eigene Gastherme, die für eine unabhängige, effiziente und individuell regulierbare Wärmeversorgung sorgt.
Zur Wohnung gehören außerdem ein PKW-Außenstellplatz sowie eine Abstellmöglichkeit für Fahrräder, die das Angebot ideal ergänzen.
Diese ansprechende Dachgeschosswohnung verbindet gemütliches Wohnen, praktische Ausstattungsmerkmale und eine angenehme Wohnatmosphäre – perfekt als Haupt- oder Zweitwohnsitz.
Der Mittelpunkt der Wohnung ist das großzügige Wohnzimmer, das durch seine helle Atmosphäre überzeugt und den direkten Zugang zum Balkon in sonniger Südostlage bietet – ideal für entspannte Frühstücksmomente oder den Genuss der ersten Sonnenstunden des Tages.
Die separate Küche ist mit einer modernen Einbauküche ausgestattet und bietet Platz für gemeinsames Kochen in ruhiger, abgetrennter Atmosphäre.
Das Schlafzimmer eignet sich perfekt als Rückzugsort und bietet ausreichend Raum für eine komfortable Möblierung.
Ein besonderes Highlight ist das Tageslichtduschbad mit zeitgemäßer Ausstattung: einer großzügigen, bodengleichen Dusche, WC, einem Waschtisch mit kombiniertem Unterschrank, Handtuchheizkörper sowie dem praktischen Anschluss für eine Waschmaschine.
Ein besonderer Vorteil der Wohnung ist die eigene Gastherme, die für eine unabhängige, effiziente und individuell regulierbare Wärmeversorgung sorgt.
Zur Wohnung gehören außerdem ein PKW-Außenstellplatz sowie eine Abstellmöglichkeit für Fahrräder, die das Angebot ideal ergänzen.
Diese ansprechende Dachgeschosswohnung verbindet gemütliches Wohnen, praktische Ausstattungsmerkmale und eine angenehme Wohnatmosphäre – perfekt als Haupt- oder Zweitwohnsitz.
sonstige Angaben
- 1 Pkw-Außenstellplatz
- Balkon in sonniger Lage
- nah am Yacht-/ Fischereihafen "Weisse Wiek" gelegen
- Einkaufsmöglichkeiten im näheren Umfeld - Discounter "Netto" inklusive Bäcker
- gemäß B-Planausweisung kann die Eigentumswohnung als Erst- oder Zweitwohnsitz genutzt werden
- Balkon in sonniger Lage
- nah am Yacht-/ Fischereihafen "Weisse Wiek" gelegen
- Einkaufsmöglichkeiten im näheren Umfeld - Discounter "Netto" inklusive Bäcker
- gemäß B-Planausweisung kann die Eigentumswohnung als Erst- oder Zweitwohnsitz genutzt werden

